projekte
martens_sternkopf
architekten und stadtplaner
martens_sternkopf architekten und stadtplaner wurde 1991 gegründet und startete mit mehreren Wettbewerbserfolgen in den Bereichen Städtebau und Hochbau.
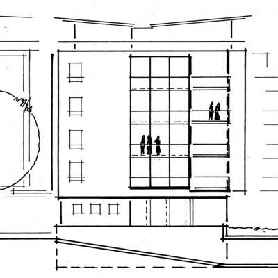
Wettbewerbe blieben ein wichtiges Standbein, und es ergaben sich vielfältige Projekte daraus. Das Spektrum geht von städtebaulichen Planungen und öffentlichen Bauten wie Schulen, Kindergärten, Brücken bis zu Gewerbebauten und Bäderbau.
Wesentliches Standbein war aber immer Planung und Bau von Wohngebäuden, viele öffentlich gefördert, in Form von Mehrfamilienhäusern und Reihenhäusern. Bereits eins unserer ersten Wohnungsbau-Projekte 1996 wurde als ökologisches Vorzeigeprojekt auf dem Konversionsgelände einer ehemaligen Kaserne gebaut. In der Folge wurden Nachhaltigkeitsstandards konsequent weiter entwickelt und umgesetzt, und so wurde z.B. 2005 ein Projekt mit dem Passivhaus-Preis der Stadt Hamburg anerkannt.
Dazu kam die Tätigkeit als Energieberater, und weitere Expertise im Bereich Kreislaufwirtschaft und allg. Ressourcen sparendes Bauen.
Hier geht die Entwicklung weg von effizienzbasierten High-Tech-Lösungen, hin zum einfachen und kostengünstigen Bauen unter Berücksichtigung der Lebenszykluskosten.
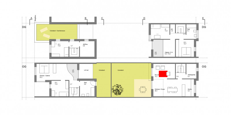
Unser Beitrag zum Wettbewerb „Wohnraum schaffen“, einfache, kostengünstige und serielle Wohngebäude, wurde in Niedersachsen bereits an verschiedenen Standorten erfolgreich umgesetzt und steht repräsentativ für unseren Anspruch, Gestaltungsqualität mit Nachhaltigkeit und Kostensicherheit zu verknüpfen.
Alle vorgenannten Schwerpunkte werden seit 1997 von Prof. H. Sternkopf auch in Forschung und Lehre an der Jade Hochschule Oldenburg begleitet.
schwerpunkte
Wohnungsbau-Projekte
Mehrfamilienhäuser
Reihenhäuser
Um- und Anbauten
Pflegeheime
Betreutes Wohnen
Allgemeiner Hochbau
Kindergärten, Jugendclubs
Schulen
Büro- und Gewerbebauten
Energie / Nachhaltigkeit
Energieberatung
Passivhausbau
Kreislaufbasiertes Bauen
Lebenszykluskosten
Stadtplanung
Bebauungspläne
Funktionspläne
Konzepte und Studien
Wettbewerbe
Beratung von Auslobern
Vorbereitung und Prüfung
Fachpreisrichter
zahlreiche Wettbewerbserfolge
Hochschule
Forschung, Vorträge
Veröffentlichungen
Lehre
Helga Sternkopf

Prof. Dipl. Ing. Architektin Stadtplanerin
Studium und Diplom an der Hochschule für bildende Künste Hamburg
Mitarbeiterin in verschiedenen Architekturbüros in Lübeck, Stuttgart und Itzehoe
Selbstständig seit 1991 mit Johannes Martens
Professorin an der FH Hannover seit 1997
seit 2007 an der Jade Hochschule Oldenburg
Schwerpunkt Forschung und Lehre in Entwurf und Stadtplanung
Preisrichtertätigkeit
Johannes Martens

Dipl. Ing. Architekt Stadtplaner Energieberater
Studium und Diplom an der Hochschule für bildende Künste Hamburg
Mitarbeiter in verschiedenen Architekturbüros in Sigmaringen, Stuttgart und Itzehoe
Selbstständig seit 1991 mit Helga Sternkopf
Schwerpunkt Wettbewerb, Planung und Bauen von Hochbauprojekten
Wettbewerbsvorbereitung und –durchführung
Projektsteuerung, Energieberatung